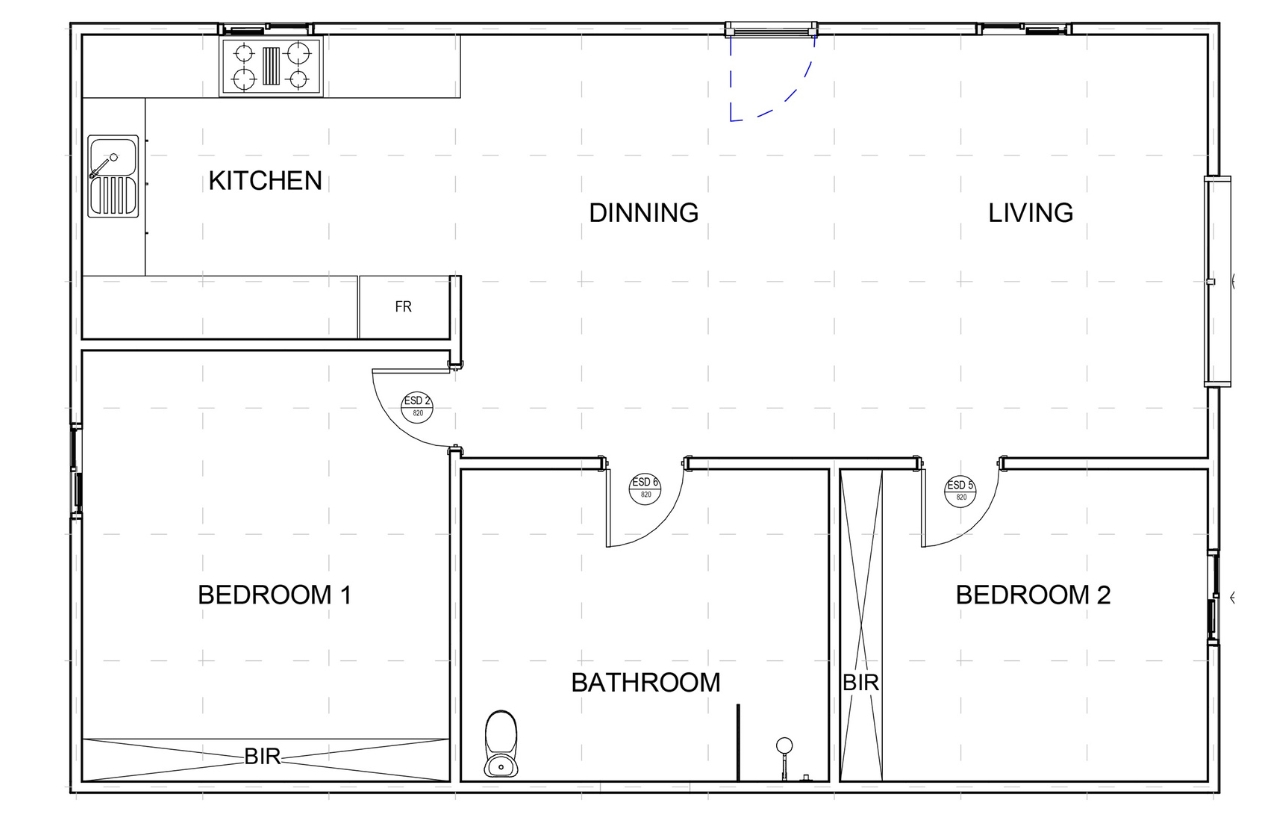
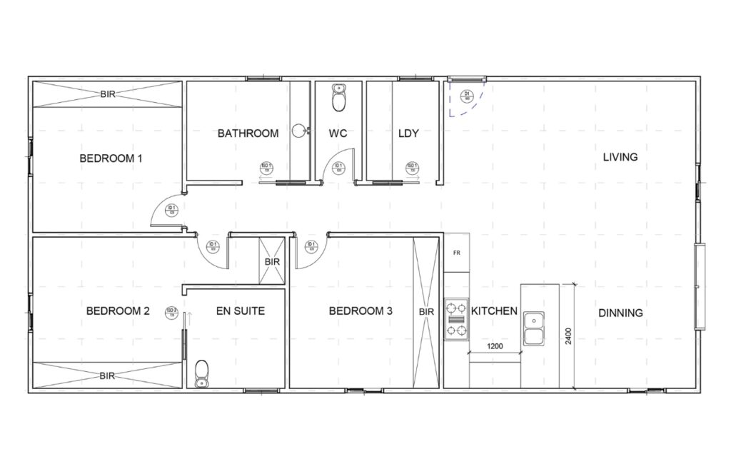
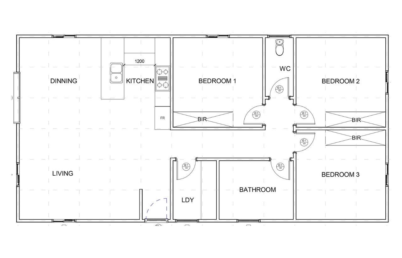
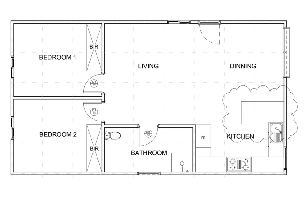
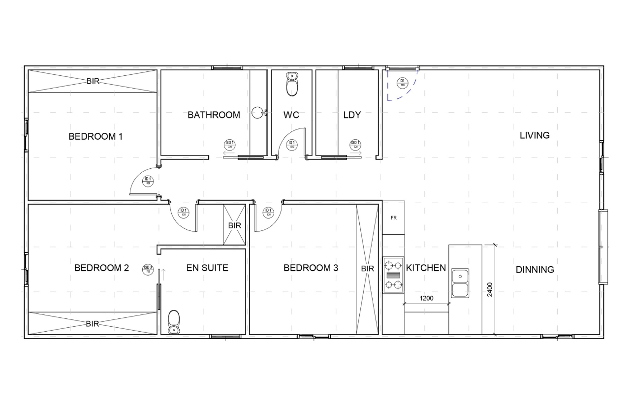
NextGen Standard Floor Plans
NextGen Wall Systems offers flat-pack kit homes with an end-to-end supply service from design to delivery. Choose from four strategically designed standard floor plans that streamline your build, reduce coordination, and keep your project moving.
What’s Included
We manage the full documentation and approval process, providing architectural and engineering drawings.
Your kit includes an engineered steel subfloor system, prefabricated and pre-clad wall panels with service holes, windows and doors, roof system, Colorbond iron, flashings, fascia and guttering.
How It Works
01
Consultation & Design
We discuss your project and select the most suitable standard floor plan.
02
Drawings & Documentation
We prepare architectural and engineering drawings and all requirements for council approval.
03
Manufacturing & Packing
Your subfloor system, wall panels and roof system are manufactured, labelled and flat-packed.
04
Delivery to Site
The complete kit is delivered, ready for efficient installation.
05
Construction to Lock-Up
With prefabricated and pre-clad components, the system is designed to achieve lock-up in days rather than months.
Benefits
You gain speed of installation, simplicity through one supplier, compliance with Australian standards, quality materials and reliable logistical support.
FAQs
What are our cladding options?
Our cladding options are:
Corrugated Iron
Shadowclad
Axon Clad